
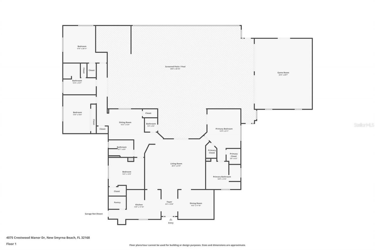
Private Resort Estate on 1.9 Acres | No HOA | RV & Boat Garage | Minutes to New Smyrna BeachExperience the perfect blend of luxury, privacy, and space with this custom-built estate on 1.9 wooded acres in X flood zone just minutes from the beach, shopping, and dining.Property highlights include: 48x48 RV/Boat Garage with four 14-ft doors, workshop space, and 50-amp hookup 4-car attached garage Resort-style heated saltwater pool & spa with waterfall, fountains, bubbler, and color lighting Outdoor ...Private Resort Estate on 1.9 Acres | No HOA | RV & Boat Garage | Minutes to New Smyrna BeachExperience the perfect blend of luxury, privacy, and space with this custom-built estate on 1.9 wooded acres in X flood zone just minutes from the beach, shopping, and dining.Property highlights include: 48x48 RV/Boat Garage with four 14-ft doors, workshop space, and 50-amp hookup 4-car attached garage Resort-style heated saltwater pool & spa with waterfall, fountains, bubbler, and color lighting Outdoor summer kitchen with Blaze grill, egg smoker, ice maker, refrigerator, sink & bar seating Large paver patio, gazebo, fire pit, turf playground & fenced dog runInside the home you'll find 10-ft tray ceilings, an open split floor plan, and tile flooring throughout. The chef's kitchen features double ovens, induction cooktop, pot filler, and custom wood cabinetry.The primary suite offers a spa-style bath with soaking tub, walk-in shower, and dual walk-in closets. A large addition provides two extra bedrooms and full bath, ideal for guests, multigenerational living, or home office space.Additional features include: 2019 Roof Two new A/C units (2024) Hybrid water heater Hurricane-rated windows Concrete wall construction Separate A/C game room off the pool Well with premium filtration Two septic systems Private road accessA rare opportunity to own a private resort-style property with room for boats, RVs, and all your toys, just minutes from the coast.
View MoreCourtesy of
Agency Name: LOCAL LIVING REALTY GROUP
Agency Contact: 386-314-5458
Agent Name: Hayley Vezza
Presented by
Agent Name: Megan Guthrie
Agent Phone: 561.670.5411
Agency Title: The Keyes Company
Request Info
Send an email with a link to
4075 Crestwood Manor Drive, New Smyrna Beach, FL 32168.
Email 4075 Crestwood Manor Drive, New Smyrna Beach, FL 32168
Thank you for your inquiry! As a thank you, we have a Special Mortgage Offer for You.
We would like to provide you a free, no-obligation, home loan pre-approval review.